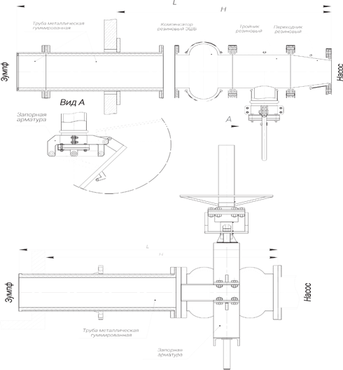
Узел соединения насоса с зумпфом (УСНЗ) представляет собой всасывающий трубопровод, предназначенный для бесперебойного подвода рабочей жидкости к насосу от заборного бака, зумпфа или резервуара.
УСНЗ является одним из наиболее ответственных элементов насосной станции.
Основным требованием, предъявляемым к всасывающим трубопроводам центробежных насосов с точки зрения обеспечения ими надежного и бесперебойного подвода рабочей жидкости, является их воздухонепроницаемость, так как, по данным многочисленных опытов и наблюдений, попадание воздуха в межлопастные каналы рабочего колеса насоса весьма отрицательно сказывается на его характеристиках.
Узел всаса комплектуется всеми необходимыми элементами (запорной арматурой, компенсатором, переходником, стальными патрубками всаса с внутренней резиновой футеровкой, тройником для промывки системы и т.п.), обеспечивающими надежную работу системы в целом.
